Biuro do wynajęcia 240,95 m² – Gdańsk | Office Island
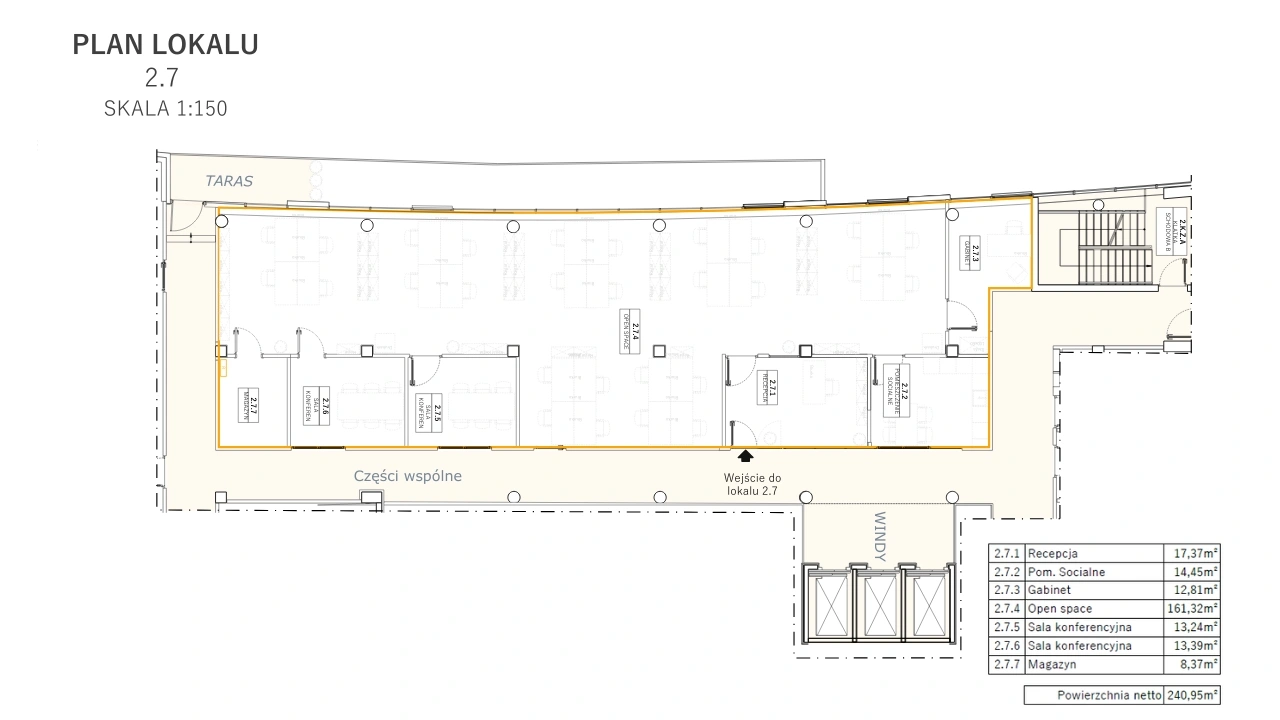
Przestronny lokal biurowy położony na piętrze nowoczesnego biurowca Office Island przy al. Grunwaldzkiej 163. Układ lokalu został zaprojektowany z myślą o wygodnej pracy zespołowej i spotkaniach biznesowych – obejmuje reprezentacyjną recepcję, duży open space, gabinet, dwie sale konferencyjne oraz zaplecze socjalne.
Duże przeszklenia wzdłuż elewacji zapewniają doskonałe doświetlenie wnętrz, a czytelny podział funkcjonalny pozwala na sprawną organizację pracy, zachowanie prywatności i komfortu akustycznego. Lokal sprawdzi się jako siedziba firmy, centrum operacyjne zespołu lub biuro wymagające wyraźnego podziału na strefy pracy, spotkań i zaplecza.
Office Island to prestiżowy adres w centrum Wrzeszcza, oferujący nowoczesną infrastrukturę, całodobową ochronę oraz bardzo dobrą komunikację miejską – idealne środowisko dla firm nastawionych na rozwój i profesjonalny wizerunek.
Informacje najmu:
• powierzchnia: 240,95 m²
• układ: recepcja, open space, gabinet, 2 sale konferencyjne, zaplecze socjalne, magazyn
• opłata eksploatacyjna: 6,50 EUR / m²
• współczynnik powierzchni wspólnych: 15%
• miejsce w hali garażowej: 90 EUR
• miejsce parkingowe naziemne: 70 EUR
Atuty:
• prestiżowa lokalizacja przy al. Grunwaldzkiej
• reprezentacyjny i funkcjonalny układ biura
• doskonałe doświetlenie naturalnym światłem
• nowoczesna infrastruktura i ochrona 24/7
• parking
Funkcjonalne biuro w lokalizacji, która realnie ułatwia codzienne funkcjonowanie firmy – w jednym z najlepiej skomunikowanych punktów Trójmiasta.

Zostaw nam wiadomość
Możesz wpisać numer telefonu lub adres e-mail – jak Ci wygodniej!
Jeśli obie formy kontaktu są dla Ciebie w porządku, śmiało dodaj oba. Wystarczy jedno z nich, żebyśmy mogli się odezwać.